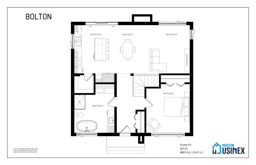
Le Bolton se distingue des modèles classiques avec son allure moderne et sa disposition intérieure. Profitez de son aire commune chaleureuse et lumineuse pour savourer votre café ou votre apéro. Il a été conçu avec des grands espaces pour vous faciliter la vie. Le modèle idéal pour permettre de vous détendre et de relaxer.







